MUCP the top precast concrete manufacturers malaysia which we specialist in precast concrete drains malaysia and precast box culvert malaysia
3. L Shape Wall

Design Criteria accordance with the following condition
- Minimun Concrete Grade 35 N/mm²
- Bulk Density of soil backfill 17.30 kN/m³
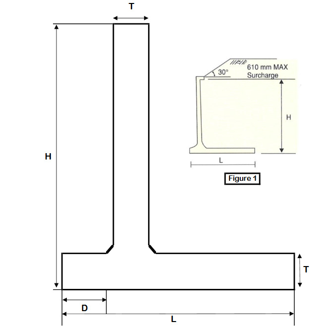
- Surcharge of 610mm maximum with 30° slope (Figure 1)
- Angle of internal friction of soil backfill to be 30°
Product Advantages
- Easily to install and dismantle
- Reliable quality control with factory manufacture condition
- Maintenance free
- Enable off loaded from transportation
- Easily assemble by unskilled labour
Product Development
- Technical specifiction is subject to change without prior notice
Product Dimensions
| H (mm) |
L (mm) |
D (mm) |
T (mm) |
Weight(±) (tonne) |
| 1200 1800 1950 3200 |
1100 1550 2100 2450 |
150 250 300 450 |
100 150 150 200 |
0.55 1.10 1.30 2.70 |
* Standard length = 1000mm
Accreditation & Certification







precast concrete manufacturers malaysia, precast concrete drains malaysia, precast box culvert malaysia.
